Rif. A036

**Villetta a Schiera nel Cuore di Noriglio** solo da Dr.SALCHER Real Estate

Rovereto (TN)

Rif. A036

Nel suggestivo centro storico di Noriglio, antico borgo collinare alle porte di Rovereto, proponiamo in vendita una raffinata villetta a schiera che interpreta con equilibrio il dialogo tra architettura tradizionale e comfort contemporaneo.

Noriglio gode di una posizione strategica e riservata, immersa nella tranquillità delle colline trentine ma perfettamente collegata ai principali centri del territorio: Rovereto è raggiungibile in pochi minuti, Trento e Bolzano distano rispettivamente circa 25 e 60 minuti, mentre le sponde del Lago di Garda – Torbole in particolare – sono comodamente accessibili in 30 minuti, rendendo la località ideale sia come residenza principale sia come casa di charme.

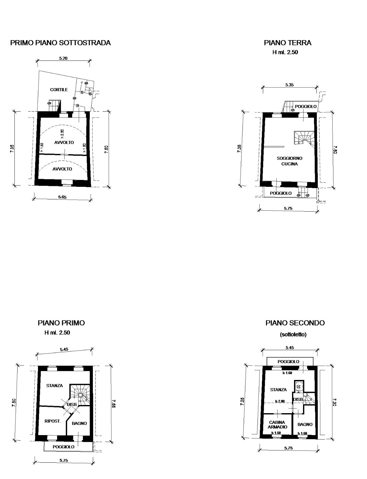
L’abitazione, completamente ristrutturata nel 2008, si sviluppa su una superficie catastale di 150 m² distribuiti su più livelli, con ambienti luminosi, armoniosi e ben articolati:

  • Piano terra: elegante zona giorno open space con cucina e soggiorno, valorizzata da due poggioli che si affacciano sulla vita del borgo, un piccolo cortile, creando un piacevole dialogo tra interno ed esterno.

  • Primo piano: disimpegno, due camere da letto e bagno finestrato con vasca, completo di poggiolo, pensato come spazio dedicato al benessere e al relax.

  • Secondo piano: esclusiva suite padronale con cabina armadio, poggiolo privato e bagno finestrato con doccia, riservato e di grande comfort.

  • Piano interratocortile, avvolto, locale centrale termica e lavanderia, spazi di servizio funzionali e ben organizzati.

La proprietà è dotata di pannelli solari per la produzione di acqua calda sanitaria, elemento che coniuga sostenibilità, efficienza energetica e risparmio nei consumi.
Completa l’immobile un garage singolo, situato a breve distanza dall’abitazione, garanzia di praticità e sicurezza.

Una proposta di pregio discreto, ideale per chi desidera abitare in un contesto autentico e ricco di storia, senza rinunciare alla comodità dei collegamenti e alla qualità dell’abitare moderno.

Attestato di Prestazione Energetica in fase di aggiornamento.

Vedi il video di presentazione:

Mappa

Informazioni

  • Tipologia
    Villetta a schiera
  • Metratura
    150 MQ
  • Locali
    4
  • Camere
    3
  • Servizi
    2
  • Box
    1
  • Posti auto
    1
  • Anno di costruzione
    2008
  • Piano
  • Spese condominiali
    15 mensili
  • APE
    in fase di aggiornamento
  • Prezzo
    390.000 €
  • Contratto
    Vendita

Scheda tecnica

  • Lavanderia
  • Doppi vetri
  • Ripostiglio
  • Passaggio pedonale
  • Riscaldamento autonomo
  • Pannelli solari
  • Ingresso Indipendente
  • Posto auto

Dr.Salcher Real Estate

Via Madonna del Monte n. 2R
38068 Rovereto (TN)
P.IVA 02654380225

Telefono: +39 340 4560824
Mail: info@drsalcher.com



Richiedi informazioni